Buitenerf 155 Breda

4824 HD Breda € 275.000

Wilt u gelijkvloers wonen? Eigen parkeerplaatsen voor de deur? Rustig gelegen en toch alle voorzieningen in de buurt? Dit is uw kans!

Deze zeer sfeervolle woning is gelegen in de kindvriendelijk “groene” woonwijk de “ Kievitsloop ” te Breda.
In de omgeving zijn naast supermarkten, het winkelcentrum Heksenwiel, ook diverse scholen en sportvoorzieningen aanwezig. Tevens zijn er diverse wandelroutes en fietspaden waar u heerlijk kunt genieten van de natuur. Het centrum van Breda ligt op fietsafstand en de verbindingen met het Centraal Station Breda en diverse uitvalswegen (A59, A57 en A16) zijn uitstekend.

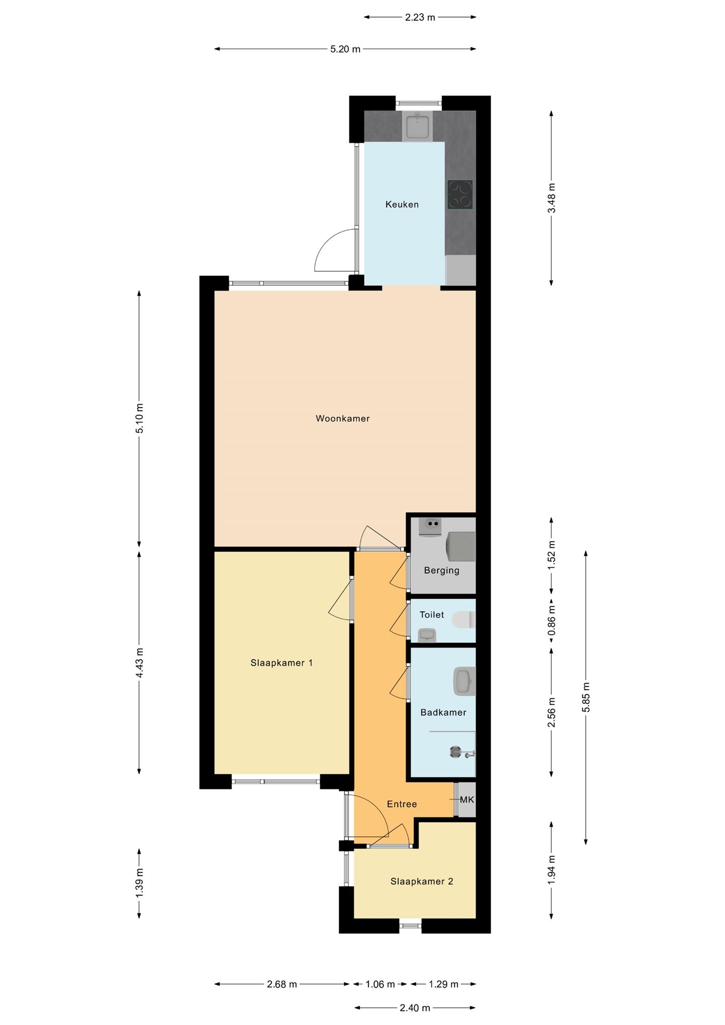
Deze halfvrijstaande bungalow met oprit en royale tuin heeft een 25,5m² grote woonkamer die aan de tuinzijde is gelegen. De woning heeft alle voorzieningen op de begane grond, waardoor deze niet alleen geschikt is voor starters, maar ook voor senioren. De royale lichte woonkamer staat in open verbinding met de keuken. De L-vormige keuken is voorzien van een vier-pits keramische kookplaat, rvs afzuigkap, vaatwasser en koelkast. De woning is geheel voorzien van houten kozijnen. Via de keuken is de tuin te bereiken. De twee slaapkamers en de badkamer bevinden zich ook aan de voorzijde van de woning. De geheel betegelde badkamer heeft een ruime inloopdouche en wastafelmeubel. Op de gang is nog een separaat toilet en riante opbergkast vinden. Hier zit tevens de stadsverwarming (huur). De woning heeft een verzorgde zij/achtertuin, is voorzien van een achterom, onderhoudsvrije houtlook schuur van metaal en houten tuinhuis met overkapping. De achtertuin is op het zuiden gelegen. De tuin beschikt verder over diverse terrassen en is vrijwel geheel betegeld met in het midden kunstgras.

Bijzonderheden:

- Alles gelijkvloers
- 2 eigen parkeerplaatsen voor de deur
- Grote tuin
- Tuin op het zuiden
- Centrale ligging
- Alle voorzieningen in de buurt
- Airconditioning

De NEN 2580 meetnorm is een eenduidige meetnorm, waarbij met bepaalde richtlijnen rekening gehouden wordt. Zo wordt o.a. een zolder zonder vaste trap of met een lichtoppervlakte (bv dakraam) kleiner dan 0,5 m² niet tot de woonoppervlakte gerekend. Hierdoor kan de woonoppervlakte soms kleiner lijken dan de daadwerkelijke vloeroppervlakte en kleiner lijken dan bij vergelijkbare woningen waar de makelaar de meetnorm niet toe heeft gepast. Ondanks het feit dat de meetnorm verplicht is, hanteren niet alle makelaars consequent de norm. MTB Makelaardij laat haar woningen inmeten door een erkend bedrijf. Het meetrapport van deze woning is dan ook, indien gewenst, ter inzage.

Overzicht

Vraagprijs € 275.000
Woonoppervlakte 66 m²
Perceeloppervlakte 192 m²
Kamers 3
Status Te Koop